Helmsley Road
, Newcastle Upon Tyne, NE2
PCM: £1,200
- 2 bedrooms
- 1 receptions
- 1 bathrooms
Description
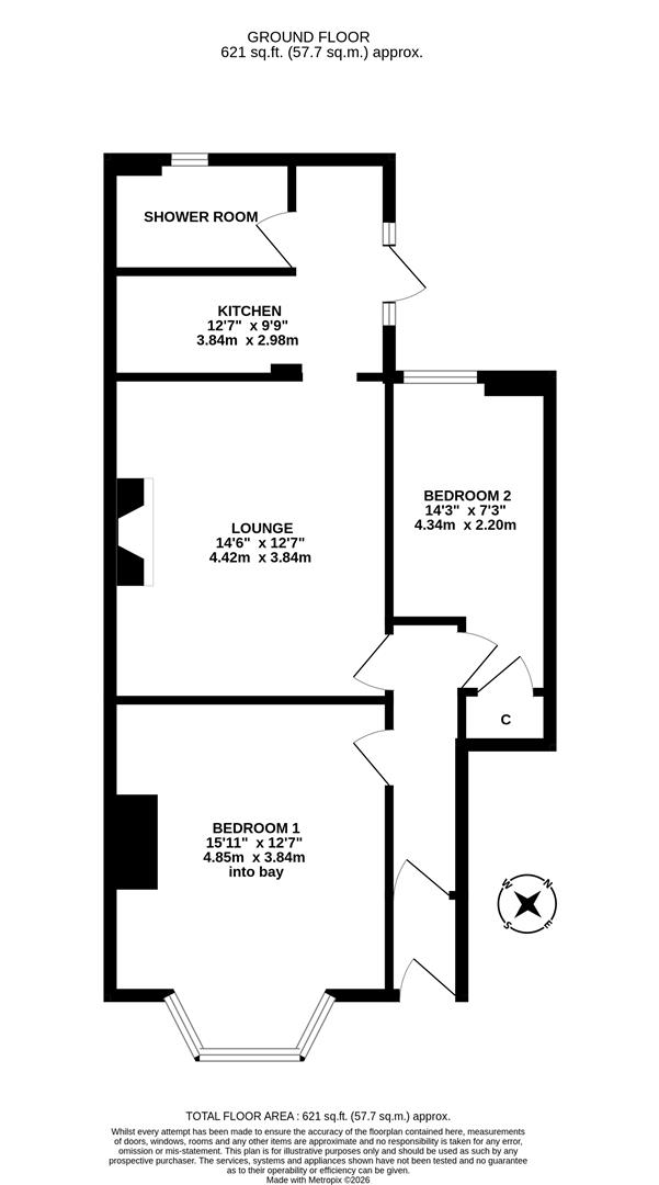
**AVAILABLE IMMEDIATELY** **STUNNING NEWLY REFURBISHED FLAT** **FURNISHED** An outstanding ground floor Tyneside style flat, beautifully refurbished to very high owner-occupier standard, offering stylish and comfortable living in a highly sought-after Sandyford location. Boasting a brand new fitted kitchen with integrated appliances, as well as a newly installed spa-style shower room finished with contemporary fittings. Additional highlights include column radiators, stripped and restored original timber flooring and full redecoration throughout, creating a bright and cohesive interior!
The accommodation is generously proportioned and well laid out, briefly comprising; entrance lobby throughout to hallway; bedroom one to the front, measuring 15ft with bay window and period ceiling rose; bedroom two, a smaller double with fitted storage space; 14ft lounge central to the property with feature fireplace, spot-lighting and open through to a newly fitted kitchen with integrated appliances, breakfasting bar, tiled splash-backs and door to rear yard; newly installed, contemporary shower room WC, part tiled with step in shower cubicle. Externally there is a private yard to the rear, with additional outside storage cupboard and on street permit parking to the front.
Ideally positioned within walking distance of Newcastle City Centre, Newcastle University, the RVI hospital and Jesmond Dene, the property also enjoys excellent access to local cafés, independent shops and transport links.
This high-quality rental offering combines luxury living with an exceptional location.
Available Immediately | £1,200pcm | Ground Floor Tyneside Flat | Fully Refurbished To High Standard | 621 Sq. ft (57.7 m2) | Two Bedrooms | Lounge | Brand New Kitchen With Integrated Appliances | Brand New Shower Room WC | Furnished | Private Rear Yard | On Street Permit Parking | Prime Sandyford Location | Stripped Original Flooring | Period Features | GCH & DG | Council Tax Band: A | EPC Rating: C

