Newlands Avenue
Melton Park, Newcastle Upon Tyne, NE3
Offers Over: £135,000
- 2 bedrooms
- 1 receptions
- 1 bathrooms
Description
With No Onward Chain! This first floor apartment with a leafy green outlook overlooks the village green at the ever popular Melton Park. Benefitting from an off street parking space and is situated close to a choice of shops, public transport links and easy access to the A1 and Newcastle City Centre.
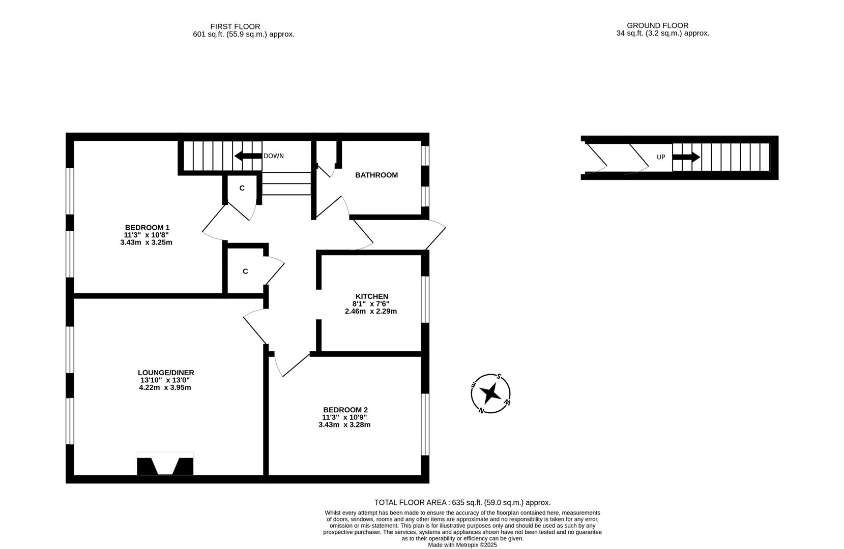
With gas central heating and double glazing throughout, the property briefly comprises; ground floor entrance with stairs leading to first floor landing with two separate store cupboards; bedroom one with views over the green; bedroom two; lounge/diner to the front, measuring 13ft with feature fireplace and a pleasant outlook; kitchen with integrated appliances; bathroom WC with three piece suite; rear porch with door leading to outside. Externally there is an off street parking space to the rear off the property.
1st Floor Apartment | 635 Sq. ft (59 m2) | Lounge/Diner | Kitchen | Two Bedrooms | Bathroom WC | Village Green Views | Off Street Parking | Great Location | No Onward Chain | GCH & DG | Freehold (lease granted to downstairs) | Council Tax Band: B | EPC Rating: D

